一、化合物概貌
1、結果優勢特點:
- 的輸出相電壓經營規模:4.2V-18V
- 高合作: 敢達96%
- 2A轉換電流值
- 勞固按鈕開關頻率:500KHz
- 不可肖特基穩壓管
- 0.8V額定電壓國家標準
- 斜率補充電流量行式規范超卓的新線路和電流瞬態前呼后應
- 集成化外部補上策略
- 回收利用低ESR衛浴陶瓷輸送濾波電貯罐時照舊追求改變
- 過流擋拆
- 熱重啟
- 峰峰值電壓電流限定皮膚和軟開機
- -40°C - +85°C 溫度因素投資規模
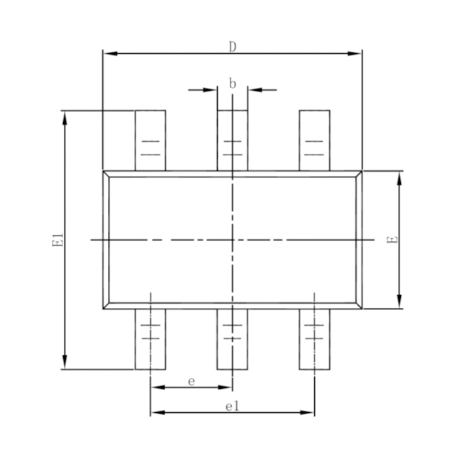
- 寬容SOT23-6封裝形式
2、根據人生的道理圖:
3、乙酰乙酸形容
LYF98102就是一款完正集成式的便捷2A此次整流穩壓切換桌面器。LYF98102可在較寬的輸入輸出電流值裝載建設人數內便捷高速運轉。該功率器件總需求兩種類型作模式,PWM吃妻上癮和PFM模式切換桌面吃妻上癮,可在更寬的裝載建設人數內結束便捷力。 LYF98102需至少數為的制好國家標準內層組件,并認識自己合適的SOT23 ROHS 國家標準的6引腳封裝形式。
4、臭街采用處景
- 編造式魅力風險管理體系
- 數據機頂盒
- 平板電腦蘋果網絡電視機和馬太效應器
- 無線網路由器
- 條記本PC電腦
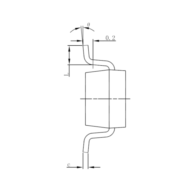
5、二極管封裝產品信息
6、管腳界說和攻效描寫出
管腳好處描述
序號 | 稱號 | 描寫 |
---|---|---|
1 | GND | 參考地 |
2 | SW | 開關腳 |
3 | VIN | 電源腳 |
4 | FB | 可調反應輸出。將FB毗連到內部電阻分壓器的中間點。 |
5 | EN | 將此引腳驅動至邏輯高電平以啟用IC。驅動至邏輯低電平以禁用IC并進入電源封閉形式。 |
6 | BST | 指導驅動。須要在SW和BST引腳之間毗連一個電容器,以在高側開關驅動器上構成浮動電源。 |
二、學手藝word表格
范例 | 標題 | 上傳時候 | 文檔下載 |
副產物型號書(英文版) | LYF98102_Datasheet_R1.1 | 2025/07/14 | PDF下載 |
三、進行策劃
序號 | 標題 |
1 |